Architectural Design Studio 1

Coursework


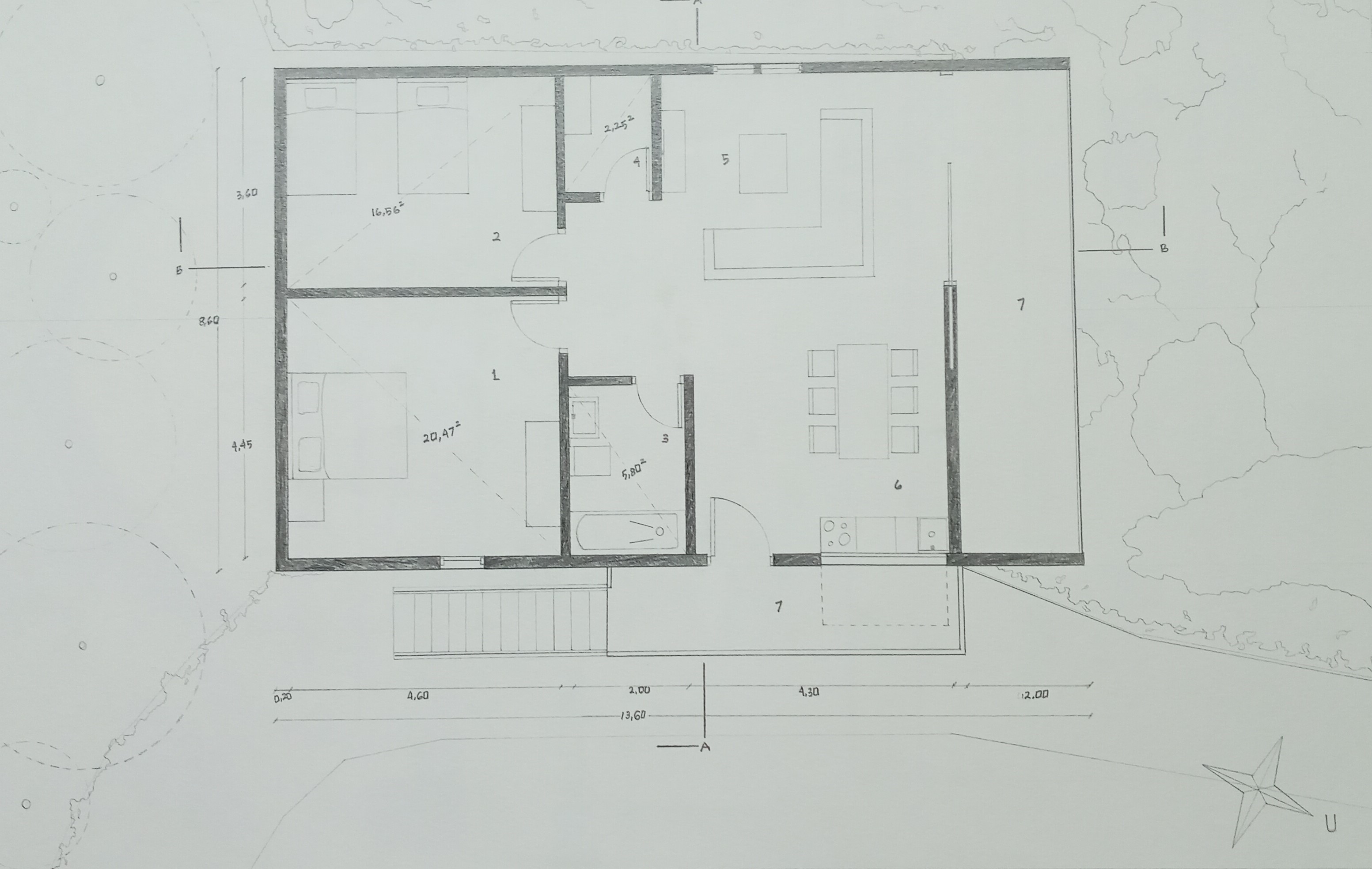
VILLA RIA

Task 1 - Rest house

In this project it is assumed that someone intends to build a vacation home in a mountainous area using private land that is not accessible to the public. The vacation home will be used by the project owner himself but can also be rented out to the public on a daily basis as a resting place, honeymoon, recreation or working on projects in small teams.

Project Information

  • Date : 2020
  • Location : Lembang
  • Organizer : Architecture study program
  • Made Using : Manually by hand

Project List

© Copyright PortoZI. All Rights Reserved

Designed by Zayyanul Ilma